

$375,000
Mobile:
609-703-2706Office
609-399-0076x125Single Family
4
2
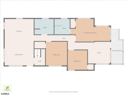
Open House: this Saturday 11–1!! Welcome to this beautifully renovated ranch in the heart of Absecon — a rare 4-bedroom, 2-full-bath home that’s truly move-in ready. Featuring new HVAC, plumbing, electrical, windows, bathrooms, kitchen, and much more, this property perfectly combines modern upgrades with cozy charm. Step into a bright, open living space filled with natural light. Kitchen showcases quartz countertops, stainless steel appliances, and a breakfast island that opens seamlessly into the dining/living area — perfect for entertaining. The primary suite includes a custom walk-in shower, while the hallway bath offers a deep tub surrounded by designer tile. The finished basement adds a fourth bedroom/den, a laundry area with washer and dryer, and plenty of storage space. Outside, a large detached one-car garage provides even more room for storage or a workshop. Schedule your personal tour today!
| Total Rooms | 8 |
| Full Bath | 2 |
| # of Stories | |
| Year Build | 1930 |
| Lot Size | Less than One Acre |
| Tax | 5086.00 |
| SQFT | 1242 |
| Exterior | Vinyl |
| OtherRooms | Eat In Kitchen, Laundry/Utility Room, Primary BR on 1st floor, Storage Attic, Workshop |
| AppliancesIncluded | Dishwasher, Dryer, Gas Stove, Microwave, Refrigerator, Self Cleaning Oven, Washer |
| Heating | Gas-Natural |
| HotWater | Gas |
| Sewer | Public Sewer |
| Bedrooms | 4 |
| Half Bath | 0 |
| # of Stories | |
| Lot Dimensions | |
| # Units | |
| Tax Year | 2025 |
| Area | Absecon City |
| ParkingGarage | One Car |
| InteriorFeatures | Carbon Monoxide Detector, Smoke/Fire Alarm |
| Basement | Finished, Plumbing |
| Cooling | Ceiling Fan(s), Central |
| Water | Public |