

$699,000
Mobile:
609-703-2706Office
609-399-0076x125Single Family
4
4
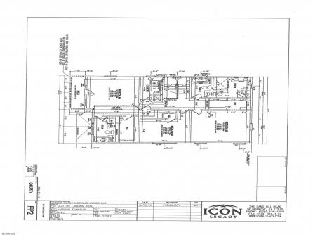
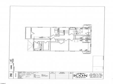
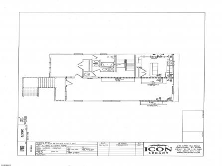
Welcome to 137 Jeffers Landing Road — a stunning new construction home offering the perfect blend of luxury, comfort, and location. This 4-bedroom, 4.5-bath residence boasts of beautifully designed living space, set on a serene one-acre lot in a peaceful, pristine setting. Every detail of this home showcases quality craftsmanship and modern style, featuring top-of-the-line finishes, high-end fixtures, and all the bells and whistles today’s buyers are looking for. The spacious, open-concept layout is ideal for entertaining, with a gourmet kitchen, elegant living and dining areas, and a seamless flow throughout. Upstairs, you’ll find four generous bedrooms, including a luxurious primary suite designed for relaxation and privacy. Additional highlights include a two-car garage, energy-efficient construction, and ample outdoor space — perfect for enjoying quiet evenings or future backyard gatherings. Ideally located just minutes from the Ocean City beaches and boardwalk, Somers Point’s vibrant restaurant scene, and major conveniences, this property offers the best of both worlds: peaceful suburban living with easy access to the Shore’s top attractions. This is your opportunity to own a brand-new home in one of the area’s most desirable locations — where modern living meets coastal charm.
| Total Rooms | 7 |
| Full Bath | 4 |
| # of Stories | |
| Year Build | |
| Lot Size | 1 to 5 Acres |
| Tax | 1.00 |
| SQFT | 2800 |
| Exterior | Vinyl |
| ParkingGarage | Attached Garage, Two Car |
| InteriorFeatures | Kitchen Center Island, Storage |
| Basement | Crawl Space |
| Cooling | Central |
| Sewer | Septic |
| Bedrooms | 4 |
| Half Bath | 1 |
| # of Stories | |
| Lot Dimensions | |
| # Units | |
| Tax Year | 1 |
| Area | Egg Harbor Twp |
| OutsideFeatures | Deck, Porch |
| OtherRooms | Dining Area, Eat In Kitchen, Great Room, Laundry/Utility Room, Library/Study, Pantry, Primary BR on 1st floor |
| AppliancesIncluded | Dishwasher, Gas Stove, Refrigerator |
| Heating | Forced Air, Gas-Natural |
| Water | Well |