

$629,900
Mobile:
609-425-6121Office
609-391-1330x423Condo
4
2
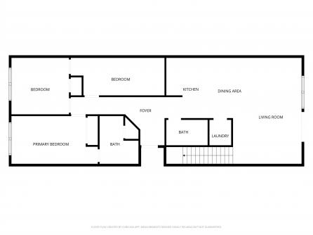
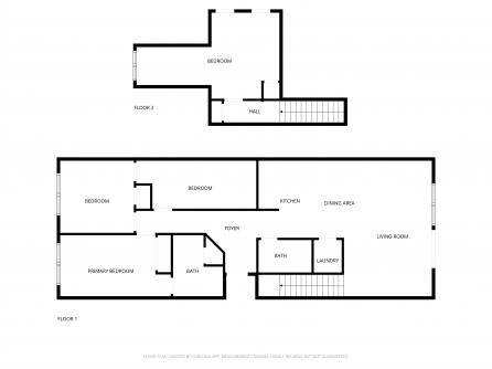
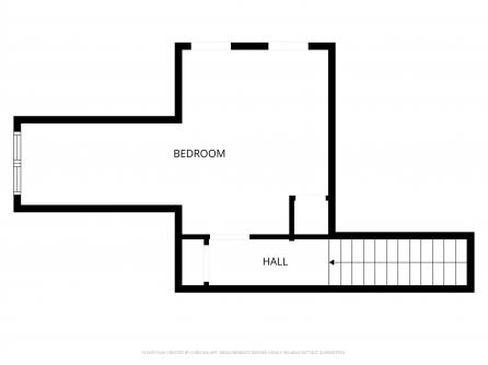
FOUR-BEDROOM CONDO WITH OCEAN VIEWS & CLOSE TO THE CONVENTION CENTER. Looking for instant income? Property already has 2 weeks booked for the summer 2026 season. Located close to everything you love about the Wildwoods—the beach, boardwalk, Convention Center, restaurants, and nightlife—this top-floor bi-level condo offers great rental performance and coastal comfort. The spacious great room features a comfortable living area with two large sectionals, providing generous seating for all your guests, a well-equipped kitchen with hardwood flooring and plenty of cabinetry, and dining space that opens to a large, private deck with ocean views—perfect for breezy evenings. Down the hall, you’ll find a primary suite with private bath, plus two additional bedrooms and a second full bath. A fourth bedroom on the upper level provides added privacy and flexibility for guests. Enjoy year-round use with central air and heat, plus an in-unit laundry room with stack washer and dryer for convenience. The two-car garage offers ample parking and includes a private storage room ideal for bikes, beach gear, and all your shore essentials. The condo is being sold turnkey, including furniture, décor, kitchenware, and electronics, so you can start enjoying or renting immediately. Note: Square footage was taken from tax records and should be verified by the buyer prior to purchase.
| Total Rooms | 7 |
| Full Bath | 2 |
| # of Stories | Two |
| Year Build | 2004 |
| Lot Size | |
| Tax | 6776.00 |
| SQFT | 1420 |
| UnitFeatures | Hardwood Floors, Wall To Wall Carpet |
| OtherRooms | Living Room, Kitchen, Eat In Kitchen, Dining Area, Laundry/Utility Room |
| AlsoIncluded | Curtains, Blinds, Furniture |
| Cooling | Central Air |
| Water | City |
| Bedrooms | 4 |
| Half Bath | 0 |
| # of Stories | Two |
| Lot Dimensions | |
| # Units | |
| Tax Year | 2024 |
| Area | Wildwood |
| ParkingGarage | Garage, 2 Car |
| AppliancesIncluded | Range, Microwave Oven, Refrigerator, Washer, Dryer, Dishwasher, Smoke/Fire Detector |
| Heating | Gas Natural, Forced Air |
| HotWater | Electric |
| Sewer | City |